7 520 000 Р 91 820 $ или 78 290

Информация о квартире

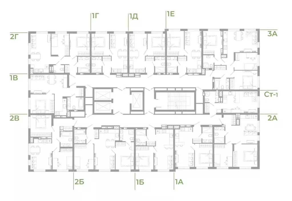
47 м2
Площадь
2
Комнаты
24
Этаж
25
Этажность

Дополнительная информация

Тип дома
монолит
Развернуть
Агент
РАЗУМ (застройщик)
+7 (930) 465-36-69
Начать чат с агентом

2-к кв. Астраханская область, Астрахань Гагарин жилой комплекс (47.9 ...

ГАГАРИН — это космический проект от компании РАЗУМ , создателя НАСЛЕДИЕ и Сердце Каспия . Три 25-этажных дома, как три ступени ракеты Восток-1 , на которой Юрий Гагарин отправился в космос, станут для жителей отправной точкой в начинаниях.В районе есть необходимая инфраструктура для жизни: магазины, школы, детские сады, спортивный комплекс Звездный , гипермаркет Лента . В первом доме комплекса есть коммерческие помещения, которые дополнят район новыми локациями.В квартирах установлены окна с отступом 50 см от пола. На пяти верхних этажах располагаются квартиры с панорамным остеклением в пол — доступны виды на весь город и Астраханский кремль 12 планировок квартир от 25 м до 75 м позволят выбрать подходящий вариант для счастливой жизни. В доме представлены квартиры с балконом и без них. На каждом этаже расположено 3 кладовых помещения. ГАГАРИН — это:- собственный двор-парк без машин;- тематические зоны в двор-парке: пространства для отдыха и релакса с гамаками и шезлонгами, амфитеатр, зона work-out, детские игровые площадки, разделенные по возрастам, первая в городе тарзанка, водные и скалолазные конструкции, песочницы, батуты;- многоуровневое освещение и видеонаблюдение по периметру комплекса;- гостевой и многоуровневый паркинг;- просторные подъездные холлы.В основе комплекса ГАГАРИН заложено продуманное проектирование квадратных метров. Квартиры продаются с предчистовой отделкой.

Читать полностью
    Позвонить Написать
    7 520 000 Р91 820 $ или 78 290
    Агент
    РАЗУМ (застройщик)
    +7 (930) 465-36-69
    Начать чат с агентом
    Похожие предложения в Астрахани
    1-к кв. Астраханская область, Астрахань ул. Адмирала Нахимова, 141Б ... - Фото 1
    1-к кв. Астраханская область, Астрахань ул. Адмирала Нахимова, 141Б ... - Фото 2
    1-комнатная квартира, общая площадь 38м², жилая 11м², кухня 16м²

    Жилой квартал Семейный это современный проект с продуманным подходом к организации пространства, в котором сочетаются уют, функциональность и комфорт для будущих жильцов. Комплекс состоит из домов II очередей. Срок сдачи в эксплуатацию I очереди ...
    • 38 м²
    • 1-ком
    • 7/10 эт.
    7 575 642 Р
    Агент
    +7 (981) Показать номер
    Посмотреть контакты
    1-комнатная квартира, общая площадь 39м²

    Продаётся 1-комнатная квартира в строящемся доме (Дом 1), срок сдачи: I-кв. 2028, общей площадью 39.82 кв.м., на 15 этаже. Новый жилой комплекс Точка от застройщика Будущееасположен по адресу: г. Астрахань, ул. Краснодарской, 43а
    • 39 м²
    • 1-ком
    • 15/19 эт.
    7 566 300 Р
    Агент
    +7 (986) Показать номер
    Посмотреть контакты
    1-комнатная квартира, общая площадь 39м²

    Продаётся 1-комнатная квартира в строящемся доме (Дом 1), срок сдачи: I-кв. 2028, общей площадью 39.82 кв.м., на 16 этаже. Новый жилой комплекс Точка от застройщика Будущееасположен по адресу: г. Астрахань, ул. Краснодарской, 43а
    • 39 м²
    • 1-ком
    • 16/19 эт.
    7 566 300 Р
    Агент
    +7 (986) Показать номер
    Посмотреть контакты
    1-комнатная квартира, общая площадь 39м²

    Продаётся 1-комнатная квартира в строящемся доме (Дом 1), срок сдачи: I-кв. 2028, общей площадью 39.82 кв.м., на 10 этаже. Новый жилой комплекс Точка от застройщика Будущееасположен по адресу: г. Астрахань, ул. Краснодарской, 43а
    • 39 м²
    • 1-ком
    • 10/19 эт.
    7 566 300 Р
    Агент
    +7 (986) Показать номер
    Посмотреть контакты
    1-комнатная квартира, общая площадь 39м²

    Продаётся 1-комнатная квартира в строящемся доме (Дом 1), срок сдачи: I-кв. 2028, общей площадью 39.82 кв.м., на 13 этаже. Новый жилой комплекс Точка от застройщика Будущееасположен по адресу: г. Астрахань, ул. Краснодарской, 43а
    • 39 м²
    • 1-ком
    • 13/19 эт.
    7 566 300 Р
    Агент
    +7 (986) Показать номер
    Посмотреть контакты

    Не нашли подходящего объявления?

    Оставьте заявку, и наши риэлторы подберут квартиру в новостройке в районе Астрахани

    (0)