Реализация объекта недвижимости приостановлена

Информация о квартире

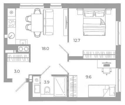
47.0 м2
Площадь
2
Комнаты
21
Этаж
25
Этажность

Дополнительная информация

Тип дома
монолит
Развернуть

2-к кв. Астраханская область, Астрахань ул. Космонавтов, 18 с/1 (47.2 ...

ГАГАРИН — это космический проект от компании РАЗУМ , создателя НАСЛЕДИЕ и Сердце Каспия . Три 25-этажных дома, как три ступени ракеты Восток-1 , на которой Юрий Гагарин отправился в космос, станут для жителей отправной точкой в начинаниях.В районе есть необходимая инфраструктура для жизни: магазины, школы, детские сады, спортивный комплекс Звездный , гипермаркет Лента . В первом доме комплекса есть коммерческие помещения, которые дополнят район новыми локациями.В квартирах установлены окна с отступом 50 см от пола. На пяти верхних этажах располагаются квартиры с панорамным остеклением в пол — доступны виды на весь город и Астраханский кремль 12 планировок квартир от 25 м до 75 м позволят выбрать подходящий вариант для счастливой жизни. В доме представлены квартиры с балконом и без них. На каждом этаже расположено 3 кладовых помещения. ГАГАРИН — это:- собственный двор-парк без машин;- тематические зоны в двор-парке: пространства для отдыха и релакса с гамаками и шезлонгами, амфитеатр, зона work-out, детские игровые площадки, разделенные по возрастам, первая в городе тарзанка, водные и скалолазные конструкции, песочницы, батуты;- многоуровневое освещение и видеонаблюдение по периметру комплекса;- гостевой и многоуровневый паркинг;- просторные подъездные холлы.В основе комплекса ГАГАРИН заложено продуманное проектирование квадратных метров. Квартиры продаются с предчистовой отделкой.

Читать полностью

    Реализация объекта недвижимости приостановлена

    Не нашли подходящего объявления?

    Оставьте заявку, и наши риэлторы подберут квартиру в новостройке в районе Астрахани

    (0)