10 411 651 Р 131 000 $ или 111 700

Информация о квартире

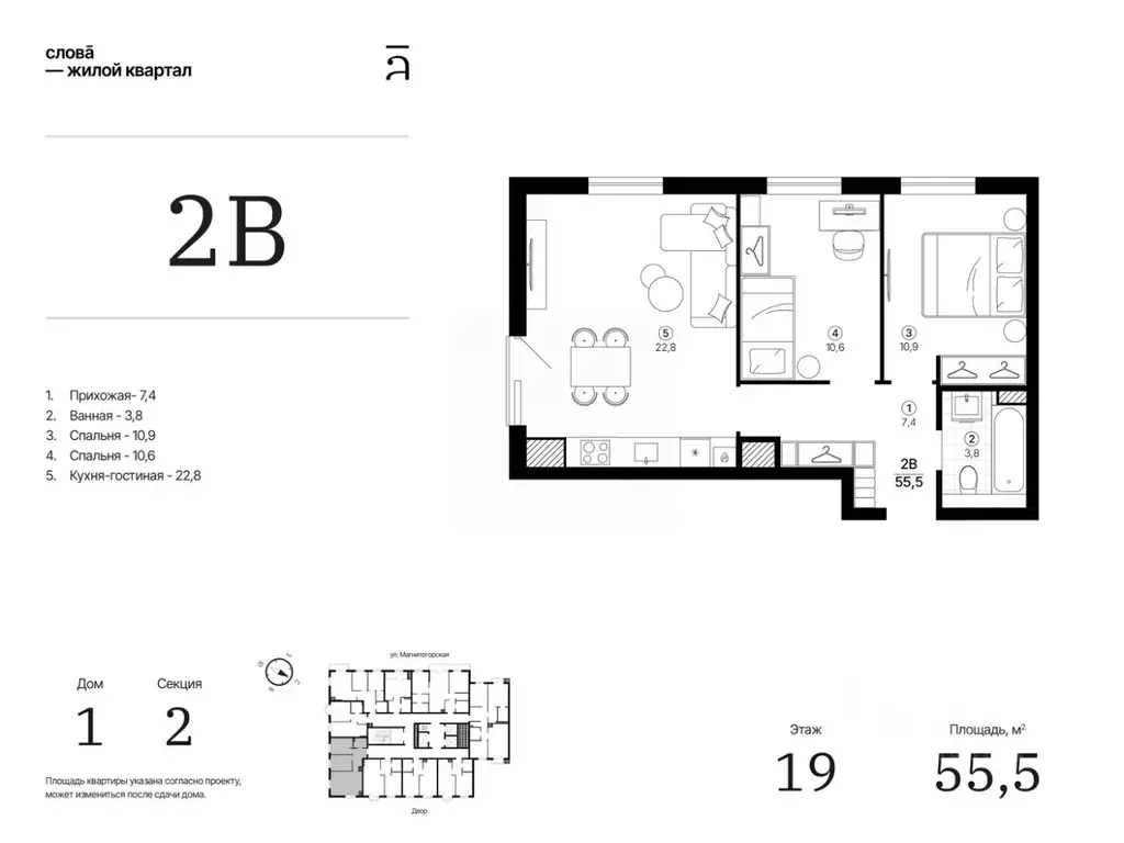
52 м2
Площадь
17 м2
Жилая
19 м2
Кухня
2
Комнаты
20
Этаж
25
Этажность
Развернуть
Агент
+7 (986) 127-28-50
Начать чат с агентом

2-к кв. Астраханская область, Астрахань Магнитогорская ул., 1 (52.91 ...

Жилой квартал Слова - это новые смыслы на карте города. В них мы заложили фундамент из собственного представления о совершенном жилье.Данное название отражает теплоту и уют добрососедства, а также многонациональность нашего города. Ведь именно слова могут быть ключом к настоящему пониманию друг друга, безграничной эмпатии и взаимодействия.Каждый житель найдёт здесь то, что важно именно для него:• закрытую территорию с круглосуточным видеонаблюдением;• подземный паркинг, в который можно попасть на лифте прямо с этажа квартиры;• камерный двор-парк с тихими зонами, детскими площадками и зонами для активного отдыха;• потрясающую детскую инфраструктуру;• просторные балконы и террасы.Район и инфраструктураИсторический. Мультикультурный. Разнообразный.Для нашего первого жилого квартала мы выбрали Кировский район, где нам удалось реализовать концепцию 15 минутного города. При этом дом расположен в глубине тихого квартала, в центре собственного парка. Все необходимое для комфортной жизни расположено в пешей доступности:• Школы• Детские сады• Магазины• Медицинский кластер• Спортивные объекты• Досуговые центрыБлагоустройствоПродумывая до мелочей основное пространство, мы не могли обойти вниманием территорию двора. Благоустроенный приватный двор с парковой зоной, на котором расположится:• игровая площадка для детей дошкольного возраста• игровая зона для джуниоров• спортивная площадка• событийная площадь• пешеходные маршруты• эксплуатируемая кровля коммерческих помещений (общая терраса)• тихая зонаМы спланировали двор таким образом, что он станет вашим особым местом, который мы спроектировали по системе без машин и посторонних . ЛандшафтНаши ландшафтные архитекторы позаботились о каждой детали и подобрали коллекцию растений от нежных злаковых, до утонченных многолетников. Таким образом под окнами дома раскинется ароматный луг.ЛоббиИнтерьер главного общественного пространства вдохновлен стилем Джапанди в сочетании Азии и Скандинавии. Во главе угла здесь современные натуральные материалы, мягкие округлые формы и минималистичный функционал.Дети могут проводить время в игровой зоне, пока вы обсуждаете за кофе на просторном диване планы на лето.Предусмотрели специальные места для хранения велосипедов, колясок и самокатов. Для питомцев продуманы лапомойки. В каждом подъезде имеется один грузо-пассажирский и два пассажирских скоростных лифта.Хорошо, когда для каждого жителя комфортное пространство не ограничивается пределами собственной квартиры.ПаркингНаличие подземного паркинга одно из преимуществ нашего проекта, который подарит уверенность в сохранности автомобиля. Для нас было важной задачей создать удобный и защищенный паркинг, в который можно попасть прямо с этажа квартиры.Для нас забота друг о друге и поддержка становятся необычайно важными, ведь жить в жилом квартале Слова - значит быть частью настоящего дружного комьюнити.

Читать полностью
    Позвонить Написать
    10 411 651 Р131 000 $ или 111 700
    Агент
    +7 (986) 127-28-50
    Начать чат с агентом
    Похожие предложения в Астрахани
    2-к кв. Астраханская область, Астрахань Магнитогорская ул., 1 (55.46 ... - Фото 1
    2-к кв. Астраханская область, Астрахань Магнитогорская ул., 1 (55.46 ... - Фото 2
    2-комнатная квартира, общая площадь 55м², жилая 21м², кухня 22м²

    Жилой квартал Слова - это новые смыслы на карте города. В них мы заложили фундамент из собственного представления о совершенном жилье.Данное название отражает теплоту и уют добрососедства, а также многонациональность нашего города. Ведь именно слова...
    • 55 м²
    • 2-ком
    • 20/25 эт.
    10 631 515 Р
    Агент
    +7 (986) Показать номер
    Посмотреть контакты
    2-к кв. Астраханская область, Астрахань Магнитогорская ул., 1 (50.34 ... - Фото 1
    2-к кв. Астраханская область, Астрахань Магнитогорская ул., 1 (50.34 ... - Фото 2
    2-комнатная квартира, общая площадь 50м², жилая 20м², кухня 16м²

    Жилой квартал Слова - это новые смыслы на карте города. В них мы заложили фундамент из собственного представления о совершенном жилье.Данное название отражает теплоту и уют добрососедства, а также многонациональность нашего города. Ведь именно слова...
    • 50 м²
    • 2-ком
    • 20/25 эт.
    9 748 735 Р
    Агент
    +7 (986) Показать номер
    Посмотреть контакты
    2-к кв. Астраханская область, Астрахань Магнитогорская ул., 1 (53.0 м) - Фото 1
    2-к кв. Астраханская область, Астрахань Магнитогорская ул., 1 (53.0 м) - Фото 2
    2-комнатная квартира, общая площадь 53м², жилая 17м², кухня 19м²

    Жилой квартал Слова - это новые смыслы на карте города. В них мы заложили фундамент из собственного представления о совершенном жилье.Данное название отражает теплоту и уют добрососедства, а также многонациональность нашего города. Ведь именно слова...
    • 53 м²
    • 2-ком
    • 9/25 эт.
    10 411 624 Р
    Агент
    +7 (986) Показать номер
    Посмотреть контакты
    2-к кв. Астраханская область, Астрахань Магнитогорская ул., 1 (55.46 ... - Фото 1
    2-к кв. Астраханская область, Астрахань Магнитогорская ул., 1 (55.46 ... - Фото 2
    2-комнатная квартира, общая площадь 55м², жилая 21м², кухня 22м²

    Жилой квартал Слова - это новые смыслы на карте города. В них мы заложили фундамент из собственного представления о совершенном жилье.Данное название отражает теплоту и уют добрососедства, а также многонациональность нашего города. Ведь именно слова...
    • 55 м²
    • 2-ком
    • 19/25 эт.
    10 631 247 Р
    Агент
    +7 (986) Показать номер
    Посмотреть контакты
    2-к кв. Астраханская область, Астрахань Магнитогорская ул., 1 (52.63 ... - Фото 1
    2-к кв. Астраханская область, Астрахань Магнитогорская ул., 1 (52.63 ... - Фото 2
    2-комнатная квартира, общая площадь 52м², жилая 17м², кухня 19м²

    Жилой квартал Слова - это новые смыслы на карте города. В них мы заложили фундамент из собственного представления о совершенном жилье.Данное название отражает теплоту и уют добрососедства, а также многонациональность нашего города. Ведь именно слова...
    • 52 м²
    • 2-ком
    • 18/25 эт.
    10 345 553 Р
    Агент
    +7 (986) Показать номер
    Посмотреть контакты

    Не нашли подходящего объявления?

    Оставьте заявку, и наши риэлторы подберут квартиру в новостройке в районе Астрахани

    (0)