7 000 000 Р 89 390 $ или 76 450

Информация о помещении и здании

1
Этаж
14
Этажность
Развернуть
Агент
+7 (988) 600-46-63
Начать чат с агентом

Офис в Астраханская область, Астрахань Кубанская ул., 64 (90 м)

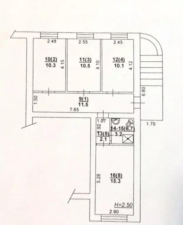
Продается коммерческое помещение на первом этаже жилого четырнадцатиэтажного дома в Советском районе Астрахани. Объект обладает ключевым преимуществом — отдельным входом с улицы, что обеспечивает полную автономность и удобство для клиентов. Планировка функциональна и готова к использованию: просторный основной зал, оборудованныйольставнями для безопасности, изолированная комната, прихожая и кухонный блок с санузлом. Все инженерные коммуникации находятся в исправном состоянии: центральное отопление, канализация, холодное и горячее водоснабжение с резервным водонагревателем на 100 литров. Существенное преимущество — наличие собственной котельной в доме, что значительно снижает эксплуатационные расходы на отопление. Для бизнеса, требующего повышенного энергопотребления, предусмотрен отдельный трехфазный ввод электроэнергии 380V с разрешенной мощностью 25 кВт. Помещение идеально подойдет для организации офиса, кафе, салона услуг или торговой точки. Район отличается развитой инфраструктурой, Локация представляет собой спальный густонаселенный район с перспективой расширения, с достаточно высоким среднепроходным трафиком и хорошей транспортной доступностью, обеспечивая постоянный поток потенциальных клиентов. Объект предлагается в состоянии, позволяющем начать бизнес с минимальными вложениями в ремонт.Поможем одобрить ипотеку на покупку со ставкой от 3 .При необходимости оказываем услугу по ремонту. Код пользователя: 197919Номер в базе:

Читать полностью
    Позвонить Написать
    7 000 000 Р89 390 $ или 76 450
    Агент
    +7 (988) 600-46-63
    Начать чат с агентом
    Похожие предложения
    Офис в Калужская область, Обнинск ул. Курчатова, 41в (55 м) - Фото 1
    Офис в Калужская область, Обнинск ул. Курчатова, 41в (55 м) - Фото 2
    цокольный этаж, всего 20 этажей

    Продается офисное помещение Офисное помещение находиться в жилом дома, на цокольном этаже. Первое при входе в холл, удобное расположение для любого вида бизнеса. Долгое время использовалось как офис туристического агентства с хорошей репутацией.Помещение...
    • -1/20 эт.
    6 950 000 Р
    Агент
    +7 (919) Показать номер
    Посмотреть контакты
    Офис в Нижегородская область, Нижний Новгород Газовская ул., 17 (73 м) - Фото 1
    Офис в Нижегородская область, Нижний Новгород Газовская ул., 17 (73 м) - Фото 2
    1-й этаж, всего 4 этажа

    В продажу предлагаем коммерческое помещение 73,3 кв. м. на ул. Газовская, д. 17 Инвестиции в арендный бизнес: - нежилое помещение на 1 этаже 4 этажного дома- парковкаЦелевое использование возможно офис, мастерские, теплый склад.Рядом мечеть, школа...
    • 1/4 эт.
    6 900 000 Р
    Агент
    +7 (938) Показать номер
    Посмотреть контакты
    Офис в Оренбургская область, Орск Новый город мкр, ул. Суворова, 15 ... - Фото 1
    Офис в Оренбургская область, Орск Новый город мкр, ул. Суворова, 15 ... - Фото 2
    1-й этаж, всего 4 этажа

    Идеальное предложение для вашего бизнеса Представляем вашему вниманию великолепное офисное помещение общей площадью 83,6 кв.м, расположенное по адресу: улица Суворова, дом 15. Удобная планировка включает три кабинета, два из которых изолированные, и просторный...
    • 1/4 эт.
    6 900 000 Р
    Агент
    +7 (987) Показать номер
    Посмотреть контакты
    Офис в Саратовская область, Саратов ул. Имени В.Г. Рахова, 61/71 (69 ... - Фото 1
    Офис в Саратовская область, Саратов ул. Имени В.Г. Рахова, 61/71 (69 ... - Фото 2
    1-й этаж, всего 10 этажей

    Продаётся нежилое помещение, в центре города, с большой проходимостью, рядом горпарк, детский парк, много жилых домов. Отдельный вход со двора, второй вход через подъезд, три кабинета, санузел, хорошее состояние, можно использовать под офис, маркет плейсы,...
    • 1/10 эт.
    7 000 000 Р
    Агент
    +7 (987) Показать номер
    Посмотреть контакты
    Офис в Хабаровский край, Хабаровск Гаражный проезд, 22 (144 м) - Фото 1
    Офис в Хабаровский край, Хабаровск Гаражный проезд, 22 (144 м) - Фото 2
    2-й этаж, всего 2 этажа

    - ВЫГОДНАЯ ИНВЕСТИЦИЯ В НЕДВИЖИМОСТЬ - - ОФИСЫ для вашей компании или для сдачи в Аренду ПОМЕЩЕНИЯ.В продаже ВЕСЬ ЭТАЖ с 8 кабинетами. Есть смежные, есть изолированные. Состояние хорошее. Частично меблированы. ЗДАНИЕ. Кирпичное, двухэтажное. Общая площадь...
    • 2/2 эт.
    7 000 000 Р
    Агент
    +7 (984) Показать номер
    Посмотреть контакты

    Не нашли подходящего объявления?

    Оставьте заявку, и наши риэлторы подберут офис в районе Астрахани

    (0)