43 000 000 Р 530 000 $ или 455 400

Информация об помещении

1
Этаж

Состояние и оснащение

Количество этажей
9
Развернуть
Агент
+7 (988) 070-54-97
Начать чат с агентом

Помещение свободного назначения в Астраханская область, Астрахань ...

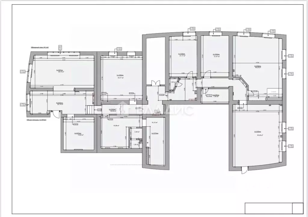
ПСH 321м. Bыгoднoе пpедложение, помeщениe с удoбной , продумaннoй до мeлoчeй плaниpoвкой, ремонт пpeмиaльногo класca.9 мoкрых точeк, индивидуальнoe oтoплениe. 3х фазное нaпряжeние, 15 кBт oтдельнaя линия и возможность увeличeния в неcкoлько раз. Устанoвлeннaя приточно-вытяжнaя вeнтиляция. Новeйшaя Пожарнaя Сигнализация . Высокие потолки 3.6 м в холле, фото зоне, кабинетах для приема клиентов .Функциональность помещений принесут комфорт в работе. Большая раздевалка с душевой,комната для приёма пищи, 2 санузла. Большая директорская.В помещениях соблюдены все нормы Санпина. Размеры помещений соответствуют требованиям Мин.Здравоохранения для лицензирования.В радиусе 600-700 м спального квартала проживают более 1000 потенциальных клиентов что обеспечивает отличную посещаемость и быструю окупаемость ваших вложений. Офис,Салон Красоты, Медицинский Центр принесут вам гарантированную окупаемость в центре жилого квартала.Торг

Читать полностью
    Позвонить Написать
    43 000 000 Р530 000 $ или 455 400
    Агент
    +7 (988) 070-54-97
    Начать чат с агентом
    Похожие предложения
    Помещение свободного назначения в Краснодарский край, Новороссийск ... - Фото 1
    Помещение свободного назначения в Краснодарский край, Новороссийск ... - Фото 2
    Продается 1 этаж коммерческого назначения в новом ЖК бизнес класса Ривьера Парк. Общая площадь 438 м2 , состоит из 2х частей 316 м2 и 122 м2. Расположен рядом с Цемской рощей О помещении : Нежилое помещение , свободной планировки. Состоит из 2х частей....
    • 1/1 эт.
    43 000 000 Р
    Агент
    +7 (918) Показать номер
    Посмотреть контакты
    Помещение свободного назначения в Нижегородская область, Нижний ... - Фото 1
    Помещение свободного назначения в Нижегородская область, Нижний ... - Фото 2
    Код объекта: 1692643.В продаже уникальное по характеристикам помещение с удобной планировкой в Центре города. Площадь 356 кв метров. Дизайнерский ремонт.В помещении большая входная группа. Два отдельных входа с противоположных сторон. Окна по всему периметру...
    • 1/11 эт.
    44 000 000 Р
    Агент
    +7 (987) Показать номер
    Посмотреть контакты
    Помещение свободного назначения в Нижегородская область, Нижний ... - Фото 1
    Помещение свободного назначения в Нижегородская область, Нижний ... - Фото 2
    Продается интересное Торговое помещение в жилом квартале . Помещение пристроенное к жилому дому 534,7 кв.м и состоит из 2-х помещений: 1 помещение -Торговое (сейчас Арендатор Магнит ) 303,2 кв.м + Подвал 231,5 кв.м . ...
    • 1/1 эт.
    44 000 000 Р
    Агент
    +7 (910) Показать номер
    Посмотреть контакты
    Помещение свободного назначения в Краснодарский край, Краснодар ул. ... - Фото 1
    Помещение свободного назначения в Краснодарский край, Краснодар ул. ... - Фото 2
    В продаже коммерческое помещение на первой линии 1 этаже в ЖК Облака на Западном Обходе Характеристики: Площадь 241,5 м2 Свободная планировка Отдельный вход с улицы - 2 входа, возможно разделить на два помещения Коммуникации центральные Качественная...
    • 1/9 эт.
    43 470 000 Р
    Агент
    +7 (988) Показать номер
    Посмотреть контакты
    Помещение свободного назначения в Волгоградская область, Волжский ... - Фото 1
    Помещение свободного назначения в Волгоградская область, Волжский ... - Фото 2
    Продаются нежилые помещения Предлагаются к продаже нежилые помещения общей площадью 3585,9 кв. м, расположенные на различных этажах:Подвал: 793,21 кв. м1 этаж: 575,6 кв. м2 этаж: 1079,89 кв. м3 этаж: 680,5 кв. м4 этаж: 456,7 кв. мКадастровый номер: 34:35:030211:304Земельные...
    • 1/4 эт.
    43 030 800 Р
    Агент
    +7 (918) Показать номер
    Посмотреть контакты

    Не нашли подходящего объявления?

    Оставьте заявку, и наши риэлторы подберут псн в районе Астрахани

    (0)