Россия, Астраханская область, Астрахань, улица Софьи Перовской, 98Ж

Реализация объекта недвижимости приостановлена

Информация об помещении

2
Этаж
Развернуть

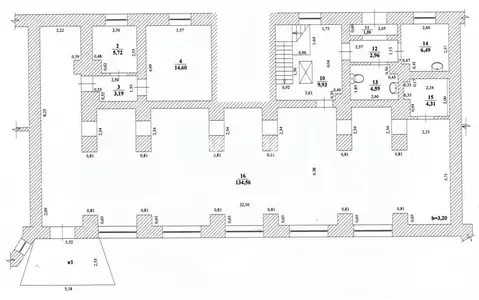
Помещение свободного назначения (120 м)

Сдается в аренду нежилое помещение (с мебелью)площадью 120 кв.м. на втором этаже 3-этажного административного здания, расположенного напротив комплекса новых домов ЖК на Моздокской . Первая линия дороги с высоким автотрафиком, общая входная группа в офисный центр со стороны проезжей части. Помещение состоит из входной группы ,4-х кабинетов и санузла . Выполнен ремонт, сдаётся с мебелью. Действуют все коммуникации, в том числе индивидуальное газовое отопление. Прямая аренда от собственника. Предоплата с депозитом, коммунальные услуги оплачиваются по факту потребления. В зоне пешей доступности: магазин автозапчастей, Wildberries, Студия Е.Зотовой, Магнит, пекарня, офисы организаций, Пятерочка, Ozon, зооцентр, салоны красоты, аптека. Прямая аренда от собственника, без комиссии для арендатора Предоплата с внесением депозитного платежа.

Читать полностью

    Реализация объекта недвижимости приостановлена

    Не нашли подходящего объявления?

    Оставьте заявку, и наши риэлторы подберут псн в районе Астрахани

    (0)