216 000 Р 2 730 $ или 2 350

Информация об помещении

1
Этаж

Состояние и оснащение

Количество этажей
2
Развернуть
Агент
+7 (989) 790-28-30
Начать чат с агентом

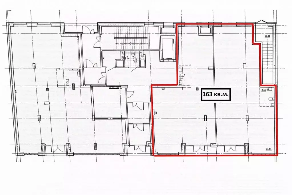
Помещение свободного назначения (216 м)

Предлагаем в арендунежилое помещение, общей площадью 216 кв.м, на 1-ом этаже, 3-х этажного жилого дома, в самом центре города. Помещение находится в исторической части нашего города, на пересечении двух главных прогулочных улиц Никольская/Ульяновых, что обеспечивает очень высокий поток жителей и туристов в любое время года. Отличная транспортная доступность. Вся инфраструктура и достопримечательности в шаговой доступности. Помещение состоит из основного зала, нескольких вспомогательных помещений, холодного цеха, трех санузлов,. Имеет два отдельных входа: основной - с ул. Никольская, дополнительный - с ул. Ульяновых. Коммунальные платежи оплачиваются отдельно. Прямая аренда от собственника, без комиссии для арендатора Предоплата с внесением депозитного платежа. Рядом находятся: театр кукол, гостиница «Астраханская , военный госпиталь, Каспийский институт морского и речного транспорта, медицинский центр «МедЭкспресс и прочее.

Читать полностью
    Позвонить Написать
    216 000 Р2 730 $ или 2 350
    Агент
    +7 (989) 790-28-30
    Начать чат с агентом
    Похожие предложения
    Данные в объявлении обновляются раз в сутки. Подробные параметры объекта, актуальные данные и НДС посмотрите на сайте электронных торгов.
    • 1 этаж
    210 720 Р
    Агент
    +7 (939) Показать номер
    Посмотреть контакты
    Помещение свободного назначения в Калининградская область, Калининград ... - Фото 1
    Помещение свободного назначения в Калининградская область, Калининград ... - Фото 2
    Арт.Предлагается в аренду помещения свободного назначения на центральной улице города Калининграда.Помещение расположено во встроено-пристроенной части на 1-ом этаже 10 этажного жилого дома. Общая Площадь помещений 443 м2: (1 этаж-178,2+ подвал-264,8).Отдельный...
    • 1/10 эт.
    215 000 Р
    Агент
    +7 (911) Показать номер
    Посмотреть контакты
    Помещение свободного назначения в Новгородская область, Великий ... - Фото 1
    Помещение свободного назначения в Новгородская область, Великий ... - Фото 2
    Сдается в аренду помещение свободного назначения, в центре города, на хорошем пешеходном трафике и с удобной парковкой. Общая площадь помещения 177,9 м2В данный момент помещение занимает банк, в случае необходимости возможно оставить сейфовую комнату...
    • 1/3 эт.
    213 480 Р
    Агент
    +7 (911) Показать номер
    Посмотреть контакты
    Помещение свободного назначения в Новосибирская область, Новосибирск ... - Фото 1
    Помещение свободного назначения в Новосибирская область, Новосибирск ... - Фото 2
    Долгосрочная аренда ПОМЕЩЕНИЕ СВОБОДНОГО НАЗНАЧЕНИЯ (тoрговая площадь, офис, склад) Локация:шаговая доступность м. Заельцовскаяновый ЖК комфорт класса Расцветайвысокий пешеходный трафикгустонаселённый спальный район Характеристика:площадь 160 кв.м.стрит-ритейл,...
    • 1/30 эт.
    225 000 Р
    Агент
    +7 (913) Показать номер
    Посмотреть контакты
    Помещение свободного назначения в Новосибирская область, Новосибирский ... - Фото 1
    Помещение свободного назначения в Новосибирская область, Новосибирский ... - Фото 2
    АртК аренде представлено помещение свободного назначения в дачном посёлке Кудряшовский Свободная планировка, высокие потолки, наличие окон, сделан свежий ремонт.Газ, центральное водоснабжение, высокие мощности.Возможность размещения названия организации...
    • -1/1 эт.
    219 960 Р
    Агент
    +7 (913) Показать номер
    Посмотреть контакты

    Не нашли подходящего объявления?

    Оставьте заявку, и наши риэлторы подберут псн в районе Астрахани

    (0)